“Der Vermittler”

Inklusion Blinder Kinder an der Christopferusschule

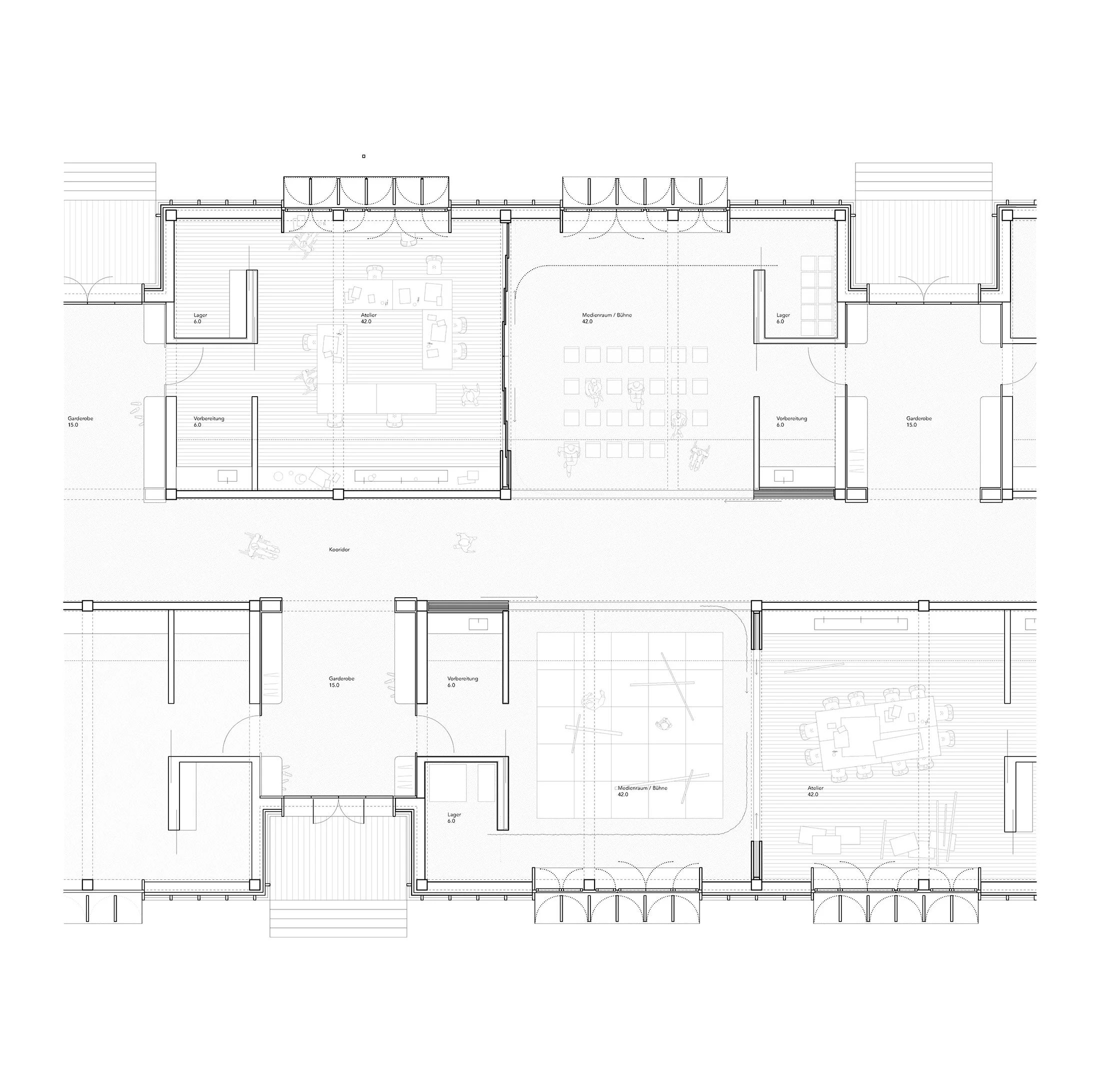
Vorgeschlagen wird eine Inklusion von blinden und sehbeeinträchtigten Kindern in Form von Handarbeit- und
Handwerkerkursen. Nicht nur die Inklusion von anderen Sonderklassen wie der der Blindenschule in Zollikofen wird vorgeschlagen. Auch die Inklusion von Regelklassen führt zu einer höheren sozialen Diversität an der Schule und soll mit neuen Kursen dem Ort einen öffentlichen Charakter verleihen. Analog der Kinder-Atelierkurse im Paul Klee Zentrum werden an Wochenenden öffentlich besuchbare Werkkurse (Lehm, Holz und Metal) angeboten.

Bachelor Thesis 2022

Coach Projekt: Peter Berger
Coach IVA: Dieter Schnell

 
 
 

Betreutes Wohnen

 
 
 
 

Wald- / Werkateliers