Studentische Arbeit / Atelier Holz / 2021
”Tuntschihütte”

Eine Zusammenarbeit mit Noah Spreng

 

Der Narrativ & der Ort

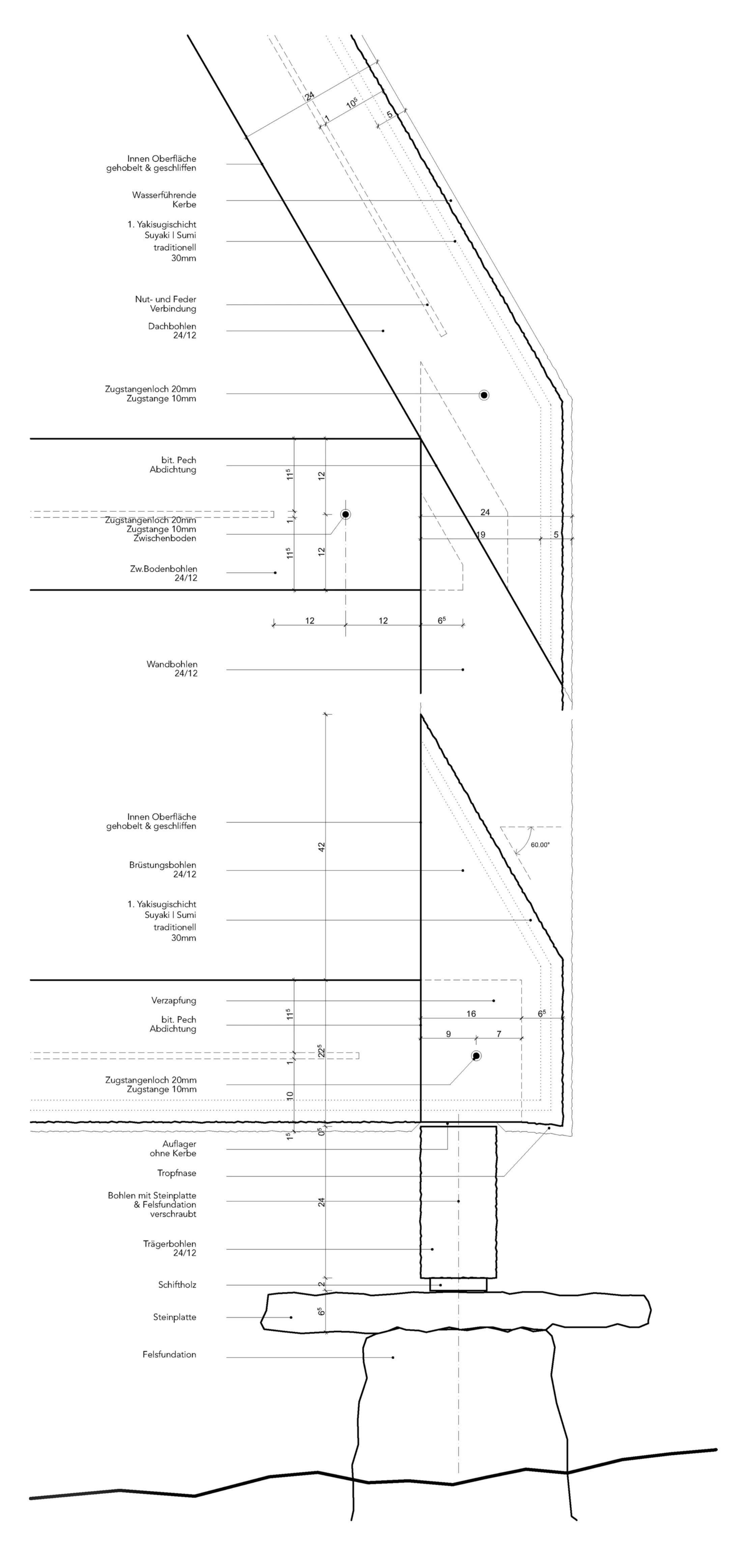
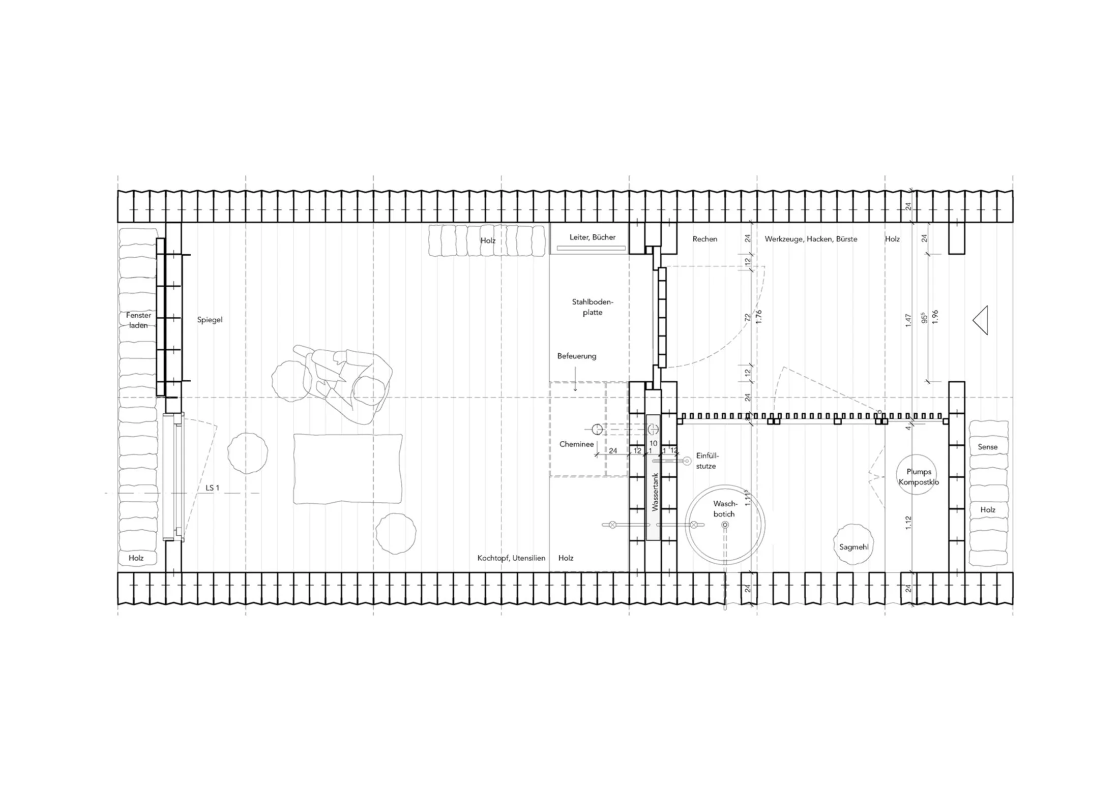
Der Mythos des Sennentuntschi fasziniert die Menschen in den tiefen alpinen Tälern schon seit Jahrhunderten. Wieso auch nicht …? Die Legende hat Alles, was eine fesselnde Geschichte so braucht; Einsamkeit, Gewalt, Sex, Perversionen, verlorene Psychen und Rache. Gerade in Zeiten der feministischen Bewegungen wird die Geschichte des Tuntschi wieder aktuell. So haben sich die 4 Wiener Schrifttellerinnen Lydia Haider, Barbi Markovic, Maria Muhar und Stefanie Sargnagel der Wiener Grippe / KW 77 im Auftrag des Schauspiel Berns auf Forschungsreise durch verlassene und abgeschiedene Täler auf der Suche nach der Legende begeben. Das Resultat dieser Reise ergab ein Drehbuch für ein neues Theaterstück, inszeniert von der Regisseurin Sara Ostertag; Tuntschi. Eine Häutung. Im Stück werden die Genderrollen prompt umgedreht. Es handelt sich also um 4 Bäuerinnen, welche eine männliches Tuntschi erschaffen und somit ihren Albtraum besiegeln. Die Bühne Bern schreibt: « Der Geist des Sennentuntschi erwacht und ruft gemeinsam mit allen Tuntschis, Sexpuppen und Avataren dieser Welt zur Rache auf.» Zurzeit wird das Theaterstück in den Vidmar Hallen in Bern aufgeführt. Unsere Tuntschihütte bietet einen Gegenstand zur Vorbereitung einer solchen Rolle. So kann sich eine Sauspielerin für eine oder zwei Woche zurückziehen, ihre Texte lernen und sich in die optimale Sinneslage versetzen. Dabei ist nicht nur die abgeschiedene Umgebung der Hütte massgebend, sondern auch der «no – tech» Gedanke. Sie soll in rustikalen Verhältnissen hausen. Zudem soll sich die Sauspielerin nicht nur mit der Lebensweise, sondern auch mit dem Lebensinhalt der damaligen Sennen beschäftigen. Die Tuntschihütte steht neben einem kleinen Kuhstall. In ihrer Abgeschiedenheit zählt das Hüten der Tiere zu einer ihrer Kernaufgaben. Erdrückende Einsamkeit mit urtümlicher Verantwortung prägen den Aufenthalt.