Chaos im Umfeld, Gedankenrisse.

Ein Garten Eden im Zentrum, für Dich allein,

fremden Blicken verborgen. Nur klaren Gedanken,

der Zutritt sei erlaubt.

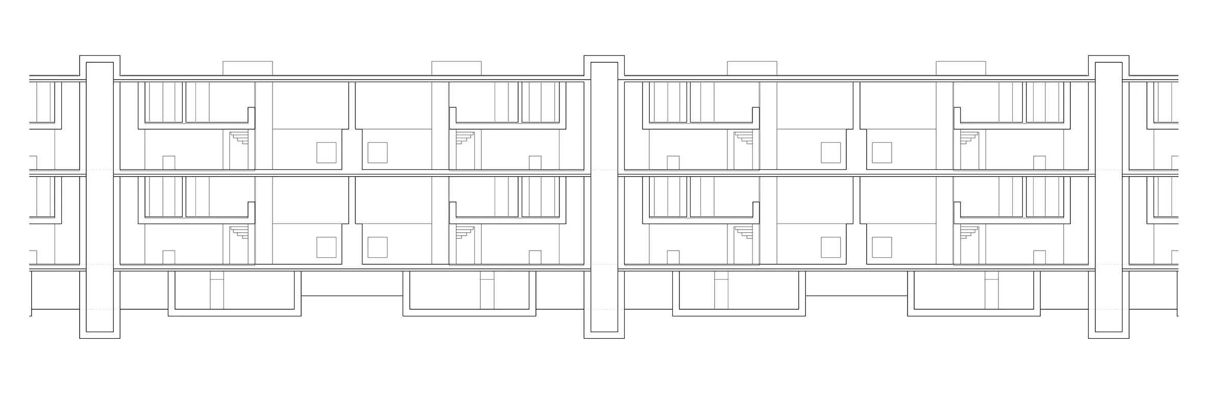
Die Idee des Raums der Inneren Ruhefindung.

Ein Spiel mit gerichteten Ausblicken.

Ein Atrium in der Zeile.