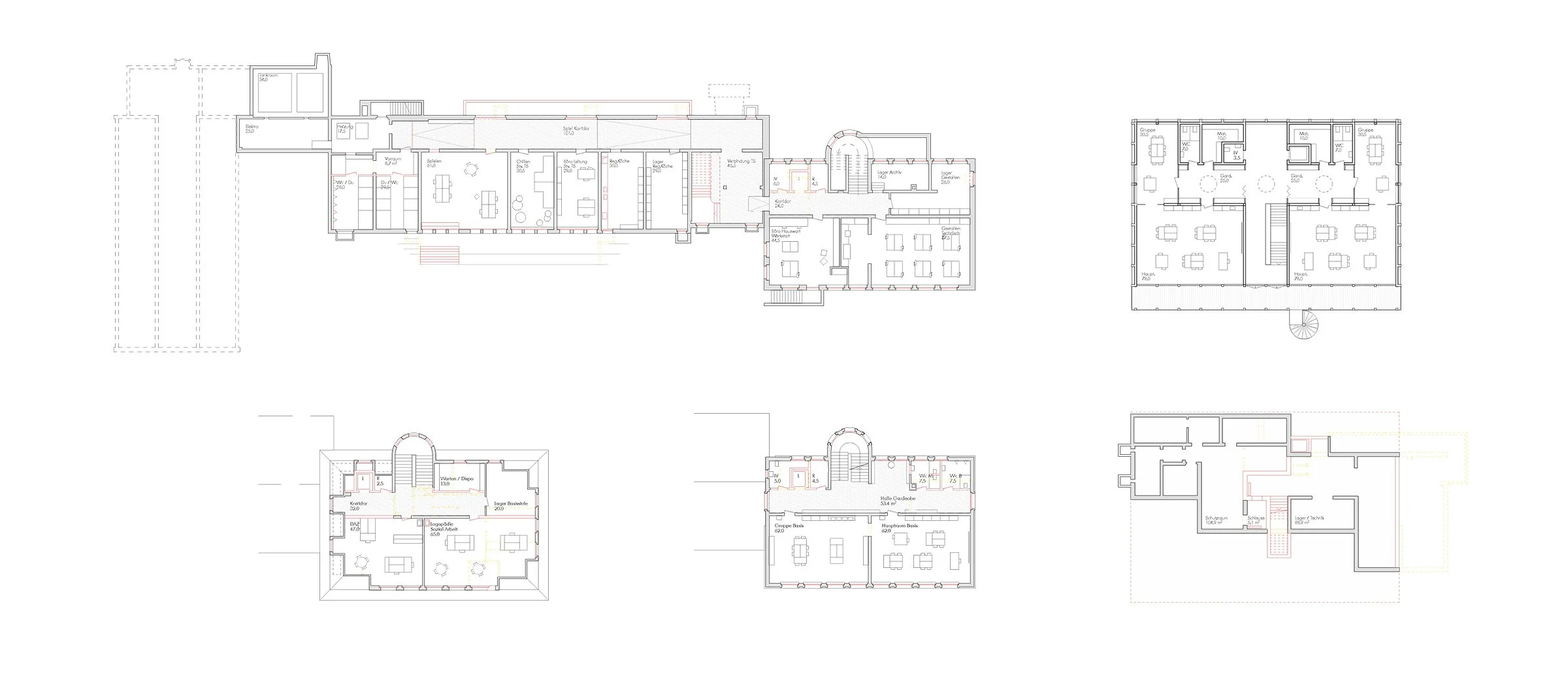
Pierrot et Pierrette
Projektwettbewerb Schulraumerweiterung Lärchenfeld, Thun
3. Platz brügger architekten AG, Thun
Mitarbeit; Entwurf Ortsbau, Idendität, Struktur Basisstufe, Umbau Bestand, Abgabelayouts
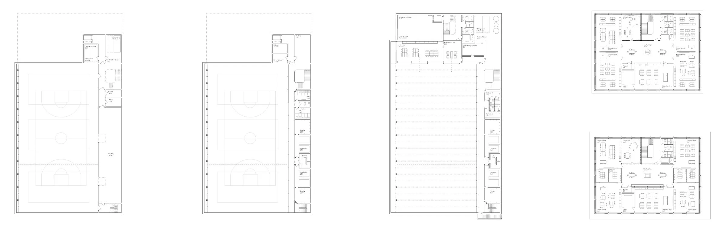
Pierrot et Pierrette
Projektwettbewerb Schulraumerweiterung Lärchenfeld, Thun
3. Platz brügger architekten AG, Thun
Mitarbeit; Entwurf Ortsbau, Idendität, Struktur Basisstufe, Umbau Bestand, Abgabelayouts