Freiräume & Vegetation

Öffentlichkeit

Erschliessung & Adressierung

Solarkraft

 

Erdgeschoss 1:200

 

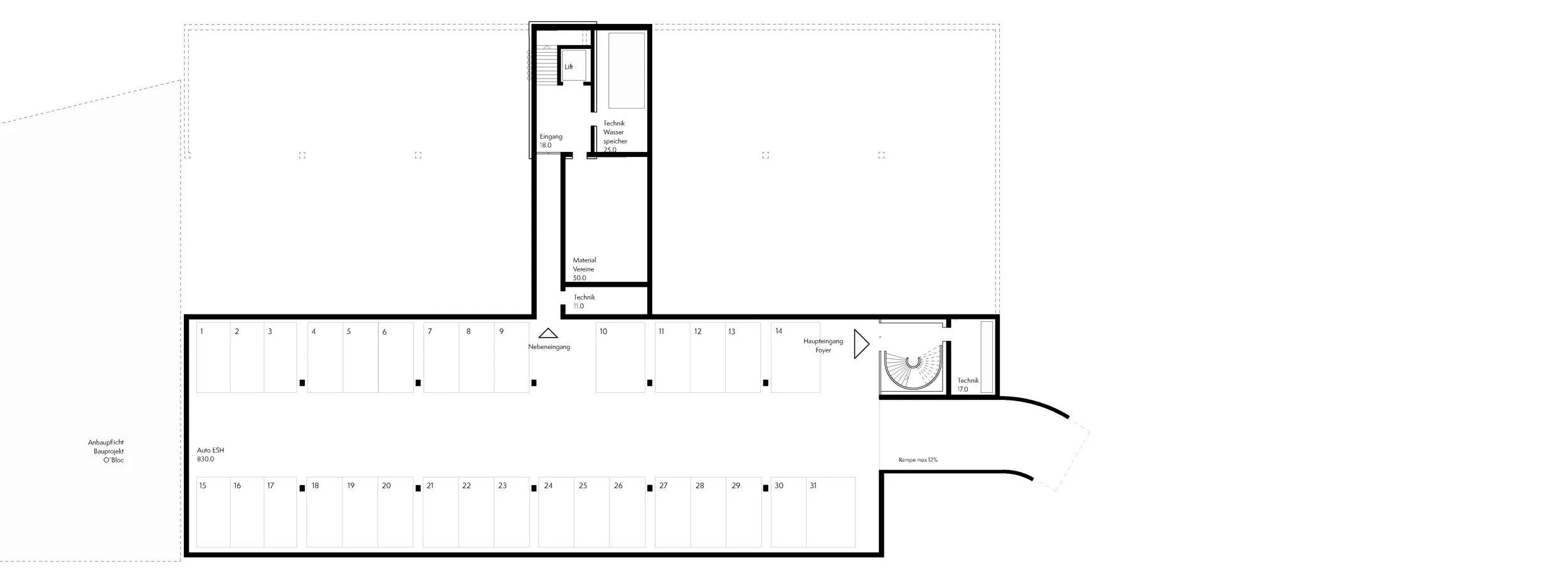
Untergeschoss 1:200

 

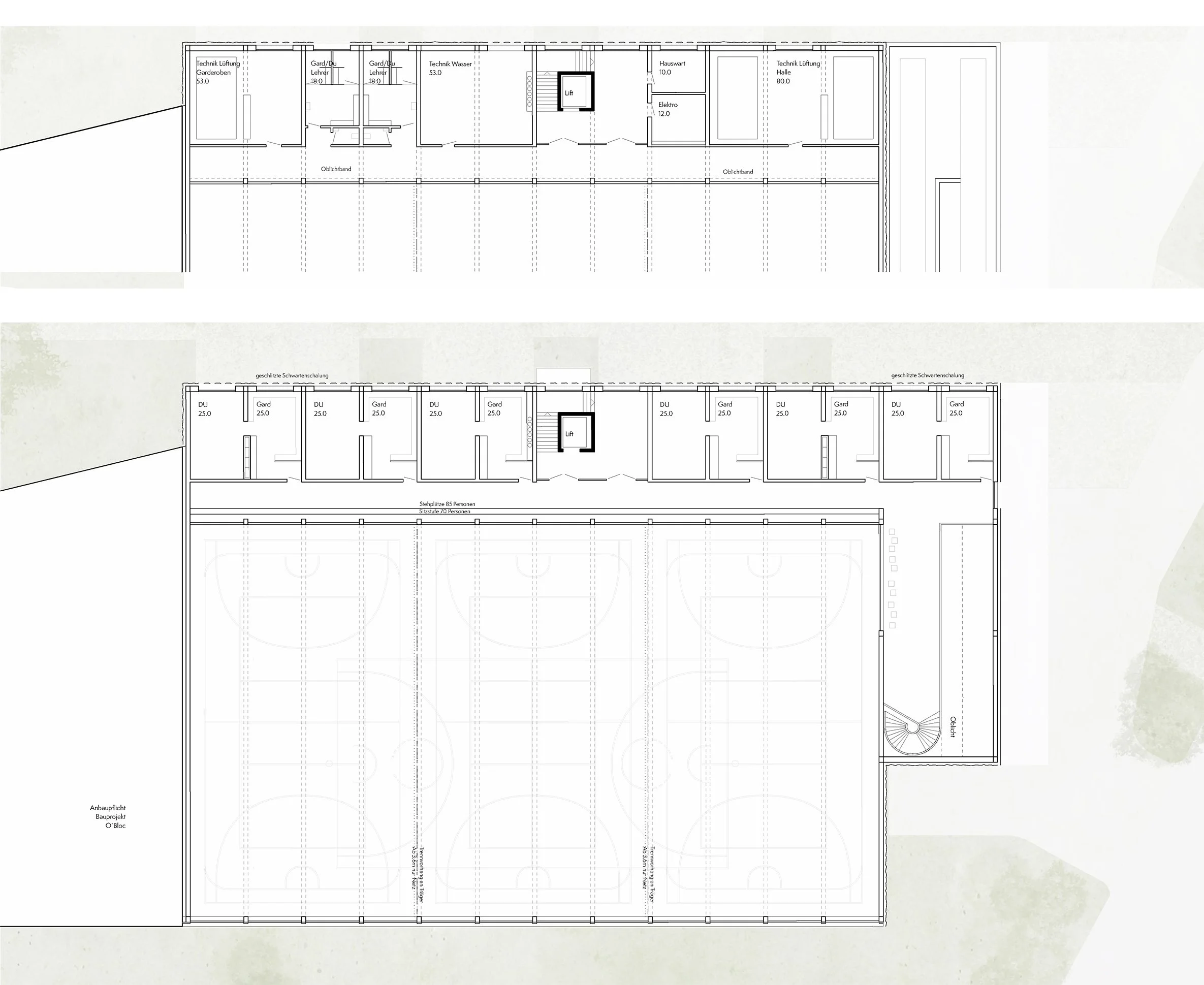
1./2. Obergeschoss 1:200

 
 
 
 
 
 
 
 
 

Ludere Domesticas

offener Projektwettbewerb Neue Sporthalle Forelstrasse, Ostermundigen

Eigener Wettbewerb, nicht Rangiert

Architektur: Roger Baumer, Maryse Pierre
Haustech: Enerplan AG, Ostermundigen
Holzbauing: Daniel Indermühle, Thun
Baumanagement: Brügger Architekten AG, Thun
Landschaftsarchitektur; Bryum, Basel